Visit Our Sales Center

Tours by appointment only, no office on site. Please call us to schedule a visit.
304-274-2400

Hours of Operation

By Appointment only

About the The Waverly I

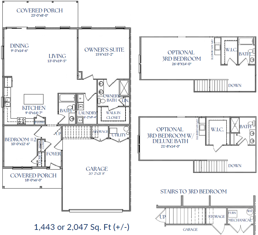
LAST 2 BEDROOM VILLA IN THIS COMMUNITY! The Villas at Warm Springs, Berkeley County’s newest 55+ community. Made up of only 14 villa homes, this community offers a peaceful setting with sidewalks throughout and is conveniently located close to shopping, restaurants, medical facilities and interstate access. Mowing of your lawn, curbside trash pickup, road maintenance and road and sidewalk snow removal are all included as part of your HOA dues! All villas come standard with a beautiful ceramic tile zero barrier Owner’s Shower, matte black lever door handles and fixtures, architectural grab bars in the Owner’s Suite bathroom and quartz or granite countertops throughout the kitchen and bathrooms. A large laundry room with a sink is located immediately outside of the Owners Suite bedroom. Thoughtfully selected by the builder, these features provide low maintenance living so you can enjoy the ease of accessibility in your new home. This particular villa also includes a bonus room upstairs with a 3rd full bathroom, a large walk-in closet and a wet bar with a mini fridge – perfect space for guests, an office, library, movie room or a craft room! All yards will be sodded and finished with low maintenance landscaping, ready for you to enjoy from your covered front or rear porch. These villas are built for you to move right in and enjoy everything this stage of life has to offer!

2 Beds
2 Baths
1,443 SF
2 car garage Beds

Map & Directions

Directions to the Model Home

From I81, Take exit 16 E.  At first light, turn left onto Mid Atlantic Parkway, immediate Right onto Warm Springs Ave.  Follow Warm Springs Ave, straight through step sign.  Community is on the left. Turn Left onto Grainfield Ct.  Tours by appointment only.

See this floorplan

Community Sitemap

Sales Info

We currently have 3 Villa’s ready for immediate move-in with only 4 left to build in this community!